1439 Malvern Road Glen Iris VIC
Immaculately Presented Shop
Wilson Commercial is pleased to offer for lease 1441 Malvern Road, Glen Iris.
The Malvern Road retail precinct is home to a diverse mix of established retailers and high-performing hospitality operators, including The Malvern Hotel, Top Paddock and Teo's Pizza Bar, supporting a strong and consistent trading environment.
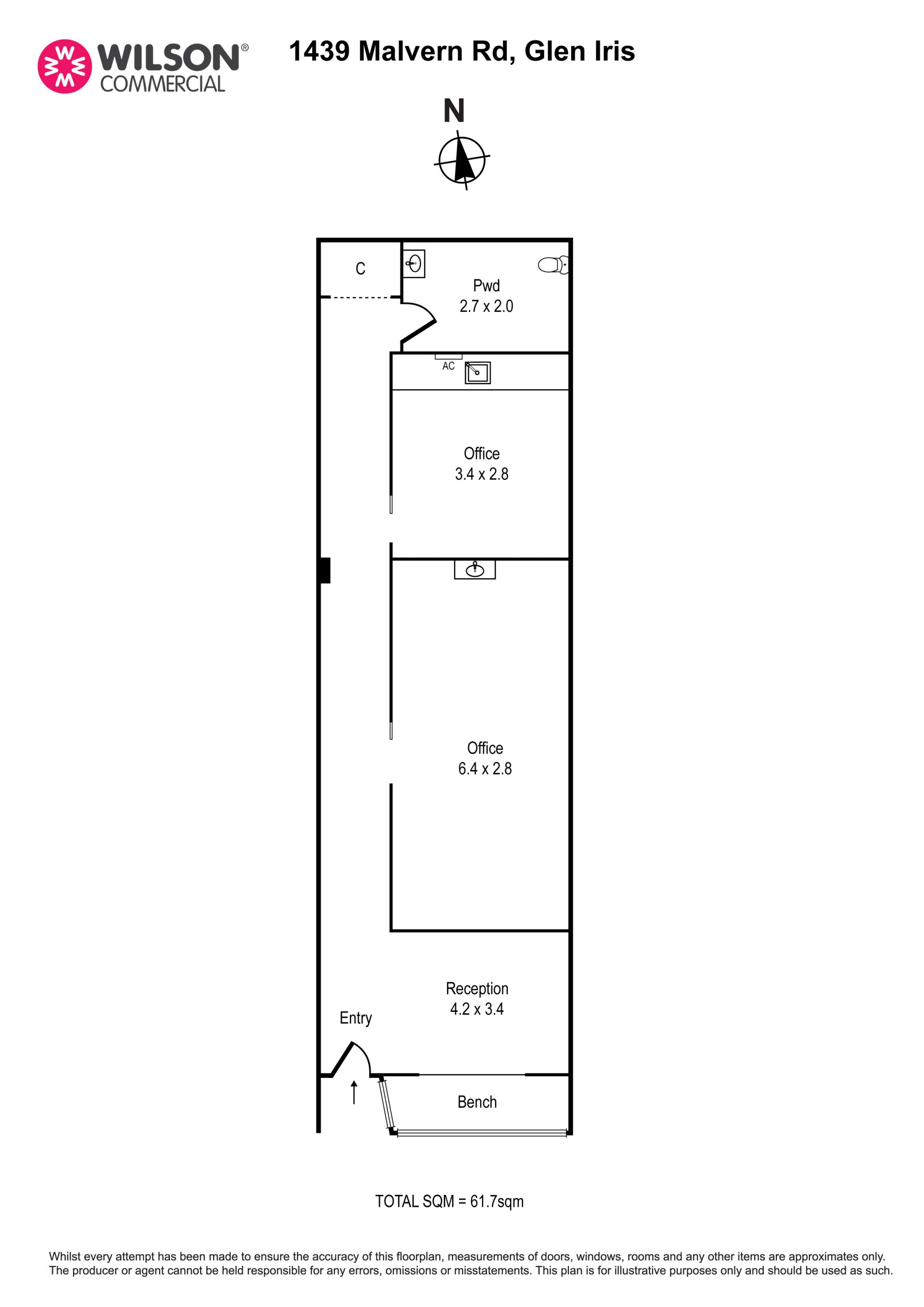
• Floor area: 63sqm approx.
• Polished floorboards and two consulting rooms with plumbing
• Accessible toilet
• Air-Conditioned
• Suitable for Retail, Medical or Beauty operators
• Direct access to the Route 72 tram and close proximity to Tooronga Train Station (approx. 400m*) and Gardiner Train Station (approx. 850m*
Available 7th April 2026.
Contact: Lan Nguyen 0421 410 466
The Malvern Road retail precinct is home to a diverse mix of established retailers and high-performing hospitality operators, including The Malvern Hotel, Top Paddock and Teo's Pizza Bar, supporting a strong and consistent trading environment.
• Floor area: 63sqm approx.
• Polished floorboards and two consulting rooms with plumbing
• Accessible toilet
• Air-Conditioned
• Suitable for Retail, Medical or Beauty operators
• Direct access to the Route 72 tram and close proximity to Tooronga Train Station (approx. 400m*) and Gardiner Train Station (approx. 850m*
Available 7th April 2026.
Contact: Lan Nguyen 0421 410 466