80 Inkerman Street St Kilda VIC
Light-Filled Creative Office in the Heart of St Kilda.
Positioned just moments from the vibrant corner of St Kilda Road and Inkerman Street, this beautifully presented first-floor office offers a rare blend of style, functionality, and location. Brimming with natural light and character, it's perfectly suited to creative teams, boutique agencies, or consultancies seeking a workspace that inspires productivity and innovation.
Only minutes to the CBD and well-connected by tram, this sought-after St Kilda address places you amid a thriving community of cafés, design studios, and local makers - offering the ultimate balance of accessibility, visibility, and atmosphere.
Key Highlights:
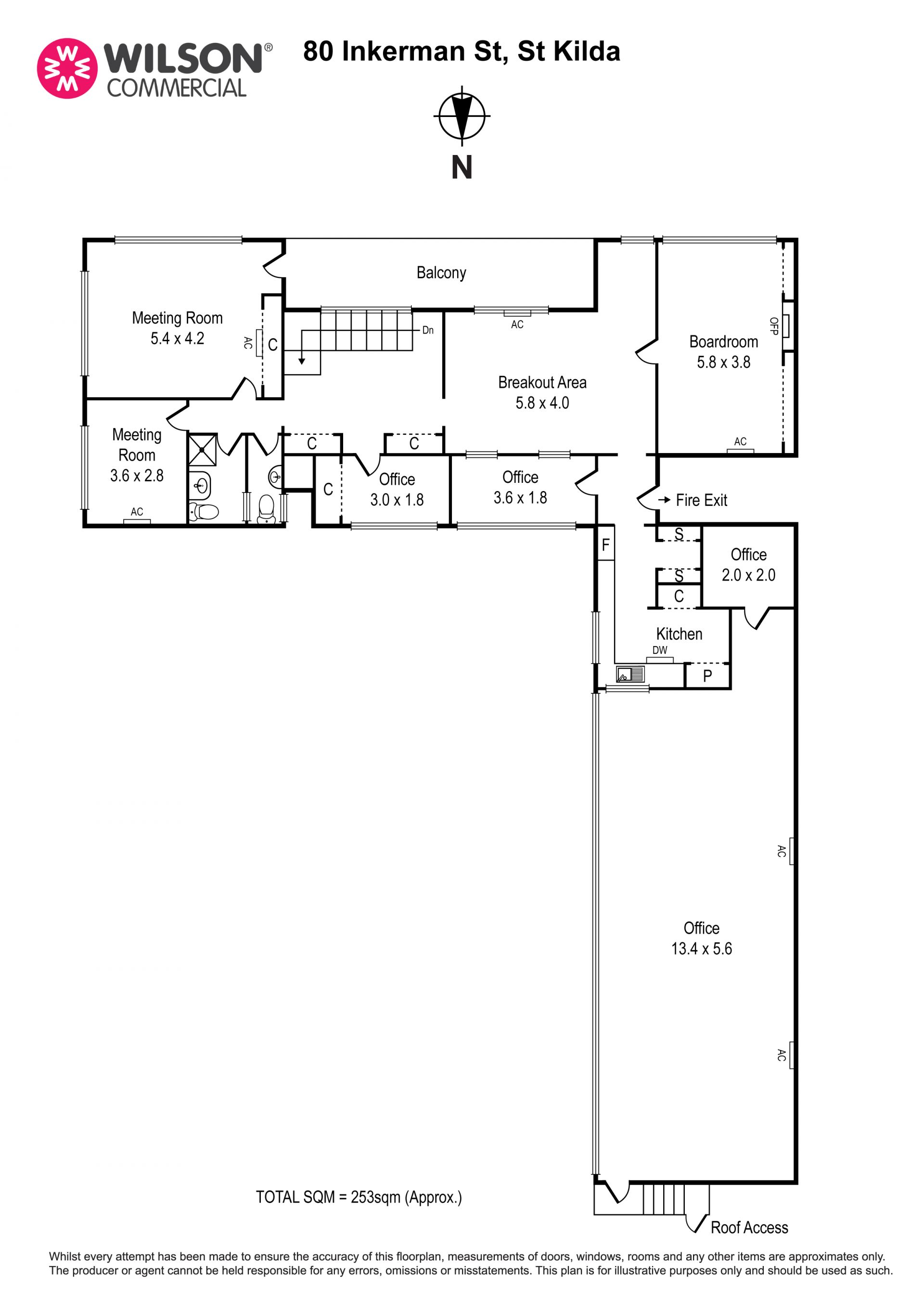
• Total Area: Approx. 253sqm
• Bright, open interiors with abundant natural light
• Polished timber floorboards enhancing warmth and character
• Versatile floorplan featuring a secure entry, spacious boardroom, training room, multiple meeting rooms, and adaptable open-plan zones
• Retro, light-filled kitchen and break area
• Two separate bathrooms
• Air conditioning throughout for year-round comfort
• Private balcony – ideal for fresh-air breaks or informal meetings
• Two off-street car spaces @ $120 each pcm + GST
• Fitout, furniture, and equipment available by negotiation with current tenant
Rental: Contact Agent
Availability: Now
Inspection: By private appointment
Only minutes to the CBD and well-connected by tram, this sought-after St Kilda address places you amid a thriving community of cafés, design studios, and local makers - offering the ultimate balance of accessibility, visibility, and atmosphere.
Key Highlights:
• Total Area: Approx. 253sqm
• Bright, open interiors with abundant natural light
• Polished timber floorboards enhancing warmth and character
• Versatile floorplan featuring a secure entry, spacious boardroom, training room, multiple meeting rooms, and adaptable open-plan zones
• Retro, light-filled kitchen and break area
• Two separate bathrooms
• Air conditioning throughout for year-round comfort
• Private balcony – ideal for fresh-air breaks or informal meetings
• Two off-street car spaces @ $120 each pcm + GST
• Fitout, furniture, and equipment available by negotiation with current tenant
Rental: Contact Agent
Availability: Now
Inspection: By private appointment