219 Glenhuntly Road, Elsternwick
PROMINENT CORNER OFFICES
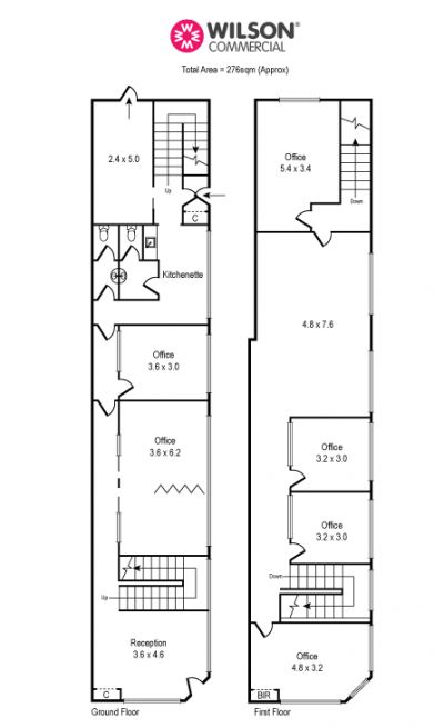
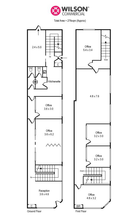
Light, bright and fully partitioned double storey corner office building in highly sought after Glenhuntly Road location.- Total area of approx. 276 sq. m
- Fully air conditioned;
- Off street car parking for 3 vehicles;
- Sep. 1st floor access;
- Sep boardroom;
- Excellent storage facilities;
- Male & female amenities;
- Kitchen facilities.
Rental: $65k p.a + outgoings & GST. Long lease with incentives available.
Inspection by Appointment, PH 03 9528 8888.
Available Now!
