G04/6 St Aubins Avenue, Caulfield North
3 2 2
Exclusive Elegance in Garden Surrounds
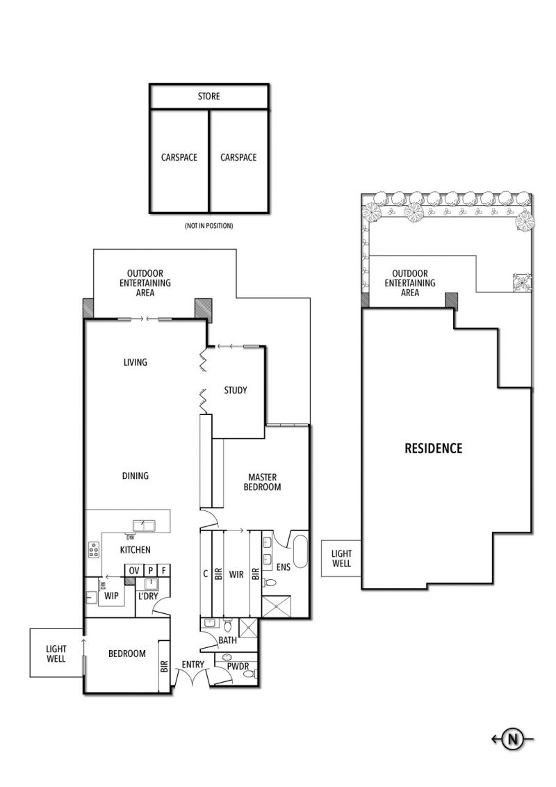
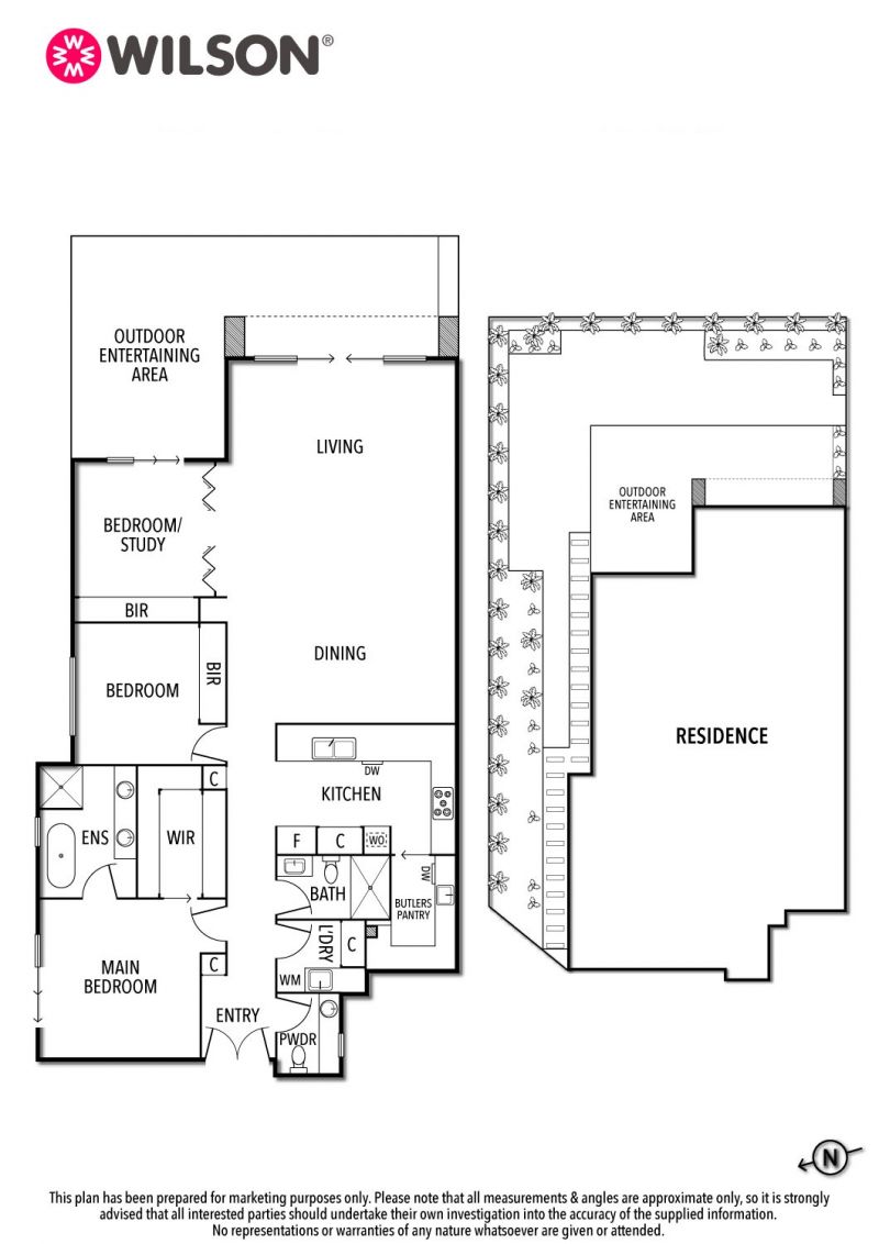
Attaining a brand-new achievement in sophisticated refinement, this superbly scaled residence delivers the absolute ultimate in contemporary class. Transcending conventional living with exceptional attention to detail, the glamorous interior goes above and beyond in its no-expense spared fit-out to create an exceptional milieu for superb all-occasion entertaining and relaxed everyday activities. The vast floor plan’s main focus is on a living and dining room embracing a dream connoisseur’s kitchen appointed with high-end Wolf cooking appliances, two dishwashers, integrated fridge and freezer, butler’s pantry and marble benchtops. The clean-lined, contemporary comfort transitions effortlessly outside to two alfresco courtyards and a private easy-to-maintain garden. With direct outdoor access, the second living zone could be configured as a home office or third bedroom to suit your requirements. A wonderful sense of luxury radiates from the massive main bedroom with dressing room, pampering ensuite bathroom with heated flooring, second bedroom, central bathroom and powder room. Two side-side car spaces next to a powered large storage cage, laundry, herringbone floorboards, dual zoned Daikin heating and air conditioning, plush carpets, video monitored secure intercom entry, bespoke built-in cabinetry , individual alarm system, and a striking light fitting suspended above the dining room are additional features. Enjoying an exclusive location in one of the finest and widest streets in Caulfield North’s Golden Mile, it’s close to transport, Greenmeadows Gardens and the retail, dining-out and lifestyle vibrancy in Carlisle Street and Elsternwick Village.Property Type Apartment
Price Sold - Undisclosed
Click to Share
