36 Cedar Street, Caulfield South

3 1

Your Perfect Blank Canvas Awaits

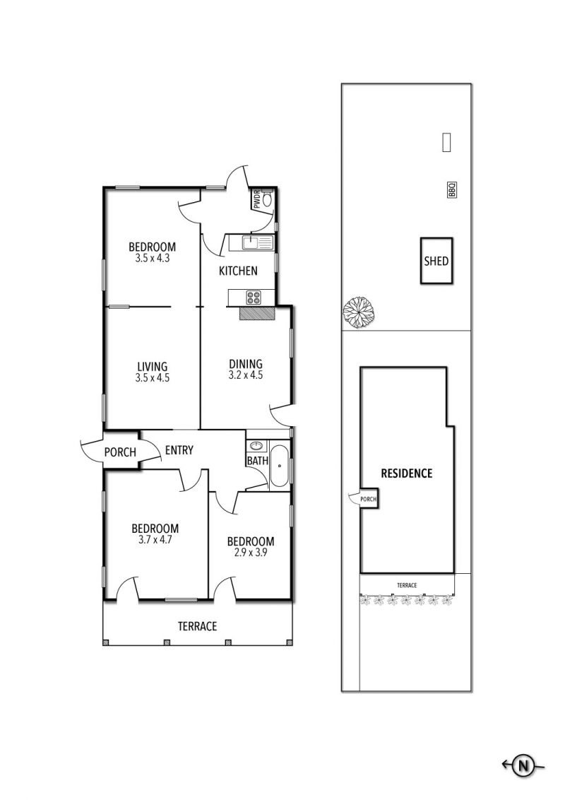
This double-brick period home is ready for you to take it to the next level though an inspired renovation and/or extension into the extra-large rear garden (STCA). With heaps of potential to reconfigure, redesign and update to meet the needs of today’s modern lifestyle, the classic interior comprises of a living/dining room, a functional kitchen and bathroom, three bedrooms and a sunroom. A versatile room leading from the second bedroom could be set up as a home office, second living room or fourth bedroom. If you don’t opt to take the renovation route, then take advantage of the level 371sqm (approx) allotment along with the tranquility of the excellent location and develop a brand-new luxurious home (STCA). Whatever you decide to do, you’re sure to be rewarded for your endeavours in this prized position that’s just one block away from city-bound trams, Caulfield Primary and the shops and choice of cafés and restaurants in Glen Huntly Road. Princes Park, train stations and Elsternwick and Glenhuntly Villages are also within close proximity.

Property Type House

Land Size 371 m2

Price Contact Agent

Auction

Auction Sat, 29th Feb 12:30pm

Inspection Times Sat, 29th Feb 12:00pm - 12:30pm Sat, 29th Feb 12:30pm - 1:00pm

Statement of Information

Email to a Friend

Agent Details

Eyal Malka Real Estate Agent

Eyal Malka

M:0414778837

E: emalka@wilsonagents.com.au

Norma Evans Real Estate Agent

Norma Evans

M:0422844666

E: nevans@wilsonagents.com.au

Make an Enquiry